Lumby Hall Cottage, Lumby, South Milford, Leeds
Property Summary
Full Details
*** Three Bedroom Cottage With Parking *** Large Rear Garden*** In The Quiet Village Of Lumby*** Easy Access To A1, Leeds And Sherburn In Elmet*** Unfurnished*** Available December 2025***
MTPC are delighted to bring to lettings market this very well presented three-bedroom cottage in the village of Lumby.
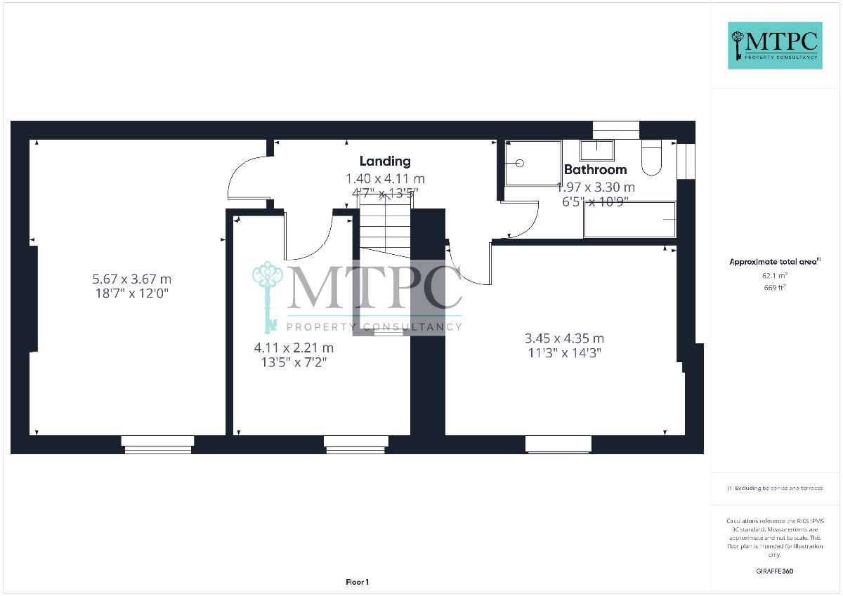
The property has recently been modernised, with new kitchen, decor and carpets throughout. The property briefly comprises of entrance hall with under stairs storage, a good size kitchen/dining room with an island and a breakfast bar.
The kitchen is fully fitted with appliances.
On the ground floor there's a lounge, with double aspect windows and an electric fire.
To the first floor there's three bedroom and a family bathroom with bath and separate shower.
The property comes with parking.
A holding deposit of £345.00 is payable to take the property off the market and will go towards your first months rent.
Available December 2025.
Unfurnished.
EPC - E (up to date one on order)
Council tax band E (Selby Council)
Bond - £1725.00
Deposit: £1,725
Holding Deposit: £345
Parking options: Off Street
Garden details: Private Garden































